~中古マンション×リノベーションを検討している方に~
2ヶ月後に引越しが可能?!工事費550万円(税別)~
セレクト型で叶えるリーズナブルで質の高いリノベーション。
イベント参加者特典有!!
【イベント概要】※予約受付終了しました
|日 時|
① 8月25日(日) ② 8月31日(土)
13時開場、13時15分開始(所要90分)
|場 所|
①アートアンドクラフト神戸事務所
神戸市中央区山本通1-7-15 東洋ハイツ2階 KITANOMAD 2D〈Googlemaps〉
②アートアンドクラフト大阪本社
大阪市西区京町堀1丁目13-24 1F〈Googlemaps〉
見学会ご予約はこちら
※事前予約制・無料
※イベント参加者特典として、オプションメニュー3点をプレゼント!(2020年3月迄のTOLA申込対象)

アートアンドクラフトのマンションリノベーションでは、完全オーダーメイドの「custom」とセレクト型「TOLA(トラ)」からお選びいただけます。
講座では「TOLA」の全貌について、
また、不動産のプロとして中古マンション購入×リノベーションの基本となる「中古物件の探し方と見極め」や「資金計画」についてもお話します。
【講座内容】
・家づくりの過程も自分らしく「custom」と「TOLA」の違い
・TOLAのシステムについて
〈お引越しまでのスケジュール/工事費/セレクト内容〉
・マンションリノベーションの事例紹介
・中古マンションの探し方と見極め
・資金計画について
〈自分は幾ら借りられる?自己資金の準備は?〉
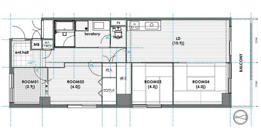
【TOLA施工事例】築40年のマンション。63平米の3LDKを1LDK+storageにリノベーション。床にはナラの無垢フローリングをセレクト。造作の建具やタイル仕上げの水回りも人気
こんな方はTOLAがオススメ!
・マンションリノベーションを検討している
・ゼロから考えるより、選んで組み合わせるほうが楽しい
・仕上がりのイメージを想像するのが難しい
・人気で実績のある建材パーツから間違いないものを選びたい
・仕事が忙しくて、子どもが小さくて、打合せ時間が十分に確保できない
・テンポ良く打合せを進めたい
・コストを抑えたいがこだわりはある
講座当日は選べる建材パーツを実際にご覧いただけます。
ご予約お待ちしています!
見学会ご予約はこちら
※予約受付終了しました
※事前予約制・無料
※イベント参加者特典として、オプションメニュー3点をプレゼント!(2020年3月迄のTOLA申込対象)
【お願いとご案内】
■ ご予約頂いた方には順次詳細ご案内をお送りします。
なお、イベント2日前までに返信がない場合は何らかの手違いが考えられます。お手数ですが[member@a-crafts.co.jp または 06-6443-1350(大阪本社)]までご一報ください。
■ 駐車場、駐輪場のご用意はございません。公共交通機関にてお越しください。
■ 同業者の方や学生の方の勉強のためのご参加はお断りしています。あしからずご了承くださいませ。
- アートアンドクラフトのWebサイトはこちら!
- 住まいづくりに役立つイベントや新着情報をお届けしています。メンバー登録を!
- Follow me!! A&Cのフェイスブックはこちら facebookpage/Twitterはこちら @_Arts_Crafts
- どこより早い物件情報はこちらから!大阪R不動産 Twitter@_OsakaR /facebook








>

>

>




