「中古マンション×リノベーション」を検討している方に
61.60平米、築42年の中古マンションを購入し、完全オーダーメイドの「custom」でリノベーションされた、Nさん宅が竣工しました。この度、お引越前の住まいをお借りして見学会を開催します。
当日は、施主様からリアルな体験談も聞けちゃいますよ!
【日 時】4月20日(土) 13:45開場/14:00開始(所要約90分)
【場 所】大阪府豊中市寺内
【最寄駅】北大阪急行「緑地公園」駅 徒歩6分
※ご予約は〈コチラ〉から ※無料
※ご予約いただいた方に詳細案内をお送りします
予約受付終了しました
Nさんは40代ご夫婦。古着好きのご主人のこだわりが凝縮された住まいは、まさに、ファッションを楽しむのと同じような自由さがあります。
特に、仕上げの表情へのこだわりは見所ポイント!
全体はグレイッシュなトーンでまとまっていますが、壁の仕上げ材だけでも
・躯体現し
・木毛セメント板
・コンクリートブロック
・足場板
などなど実に表情豊か。
塗装仕上げの壁も、ツルっとした仕上げでなく、下地加工を施しあえてザラッとした表情に。
ぜひとも現地で味わってほしいです。

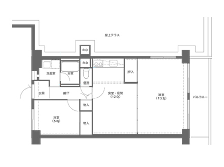
BEFORE:築42年の中古マンション。室内と同じくらい広さのある屋上テラス付きの1室。

AFTER:寝室と広々とした玄関土間にLDKといったプランニングに。

↑ 打合せ時イメージパース:広々玄関土間には、コンクリートブロックと特注のエキスパンドメタルの壁で仕切られた収納スペース。

↑ 打合せ時イメージパース:寝室とLDKは窓のある壁で緩やかに仕切る。壁はザラッと表情のある塗装仕上げ。

↑ 工事中:寝室の壁は足場板仕上げ。

↑ 工事中:LDKの壁1面は木毛セメント板仕上げ。住居では馴染みのない素材で、まるで店舗のような空間に。
・素材の表情を体感したい
・インダストリアルな雰囲気が好き
・プランや広さの参考に見てみたい
・物件探しからリノベーションまで、施主のリアルな体験談を聞きたい
という方はぜひお越しください。
※ご予約は〈コチラ〉から ※無料
※ご予約いただいた方に詳細案内をお送りします
予約受付終了しました
【お願い】
・お申込み頂いた方へ詳しいご案内をお送りいたします。但し、4月18日(木)中までに返信がない場合は何らかの手違いが考えられますので、お手数ですが[member@a-crafts.co.jp]または[06-6443-1350]までご一報ください。
・ご予約多数の場合は具体的にご検討の方を優先してご案内させていただく場合がございます。
・小さなお子様連れの方は抱っこしていただく等のご配慮をお願いします。また、ご飲食やおもちゃで遊ばせる等もご遠慮ください。
・駐車場のご用意はありません。公共交通機関にてお越しください。
・個人住宅のため写真撮影はお断り申し上げます。
・同業者の方や学生の方の勉強のためのご参加はお断りしています。あしからずご了承くださいませ。
- アートアンドクラフトのWebサイトはこちら!
- 住まいづくりに役立つイベントや新着情報をお届けしています。メンバー登録を!
- Follow me!! A&Cのフェイスブックはこちら facebookpage/Twitterはこちら @_Arts_Crafts
- どこより早い物件情報はこちらから!大阪R不動産 Twitter@_OsakaR /facebook

