5月24日(日)13:00~16:00
大阪市西区南堀江4丁目29-19 *予約不要
ーー
お待たせしました。
セレクト型リノベーションTOLAの新しいモデルが南堀江に完成します!

いわゆる3LDKのマンションに我慢して過ごすのはやめて、
いまの生活を大切に、自分たちにフィットする間取りを考えたい。
そんな思いから生まれたTOLA。
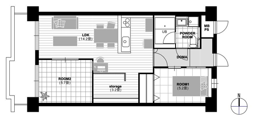
今回のモデルは61平米。
個室も確保しつつ、家族で広々くつろげるLDK+2ROOMプランでつくりました。

対面キッチンは川沿いのバルコニーに向けて気持ち良く。
LDKはやわらかな質感の杉無垢フローリング。
バルコニー側の個室は、いつもは扉を開けたままでサブリビングづかい、
一人になりたいとき、だれかが泊りに来たときには個室にも。

バルコニーからの眺望
そんな、モデル@南堀江のオープンに合わせて見学会を開催します!
いままで、リノベーションされた部屋をみたことがある方もない方も、
素材の気持ち良さ/使い心地にこだわった建材/マンションリノベーションの雰囲気
TOLAならではの空間を、体感しにお越しください。
===========================================
日時:5月24日(日)13時〜16時
場所:大阪市西区南堀江4丁目29-19
*ご予約は不要です。マンション7階までお越しください。
アクセス:地下鉄鶴見緑地線「ドーム前千代崎駅」徒歩4分/地下鉄千日前線「西長堀駅」徒歩10分
Googleマップで確認
・駐車場/駐輪場のご用意はございません。
・同業者の方や学生の方の参考見学は、お断りしております。あしからずご了承くださいませ。
===========================================
- アートアンドクラフトのWebサイトはこちら!
- 住まいづくりに役立つイベントや新着情報をお届けしています。メンバー登録を!
- Follow me!! A&Cのフェイスブックはこちら facebookpage/Twitterはこちら @_Arts_Crafts
- どこより早い物件情報はこちらから!大阪R不動産 Twitter@_OsakaR /facebook










