東向きの窓から差し込む朝の光。バルコニーから望む南大江公園の緑。心地よく抜けていく風。この部屋が元々持っていた魅力を最大限に生かした住まいができました。単身住まいのオトナが満足できる”ひとり住まい”の住宅が少なすぎる!ひとり暮らしだからこそ自由に気ままに楽しめるのに。アートアンドクラフトが考える“オトナのひとり住まい”シリーズ5作目。

高さでスペースにメリハリをつけることで広がりを感じられるプランニングとしました。

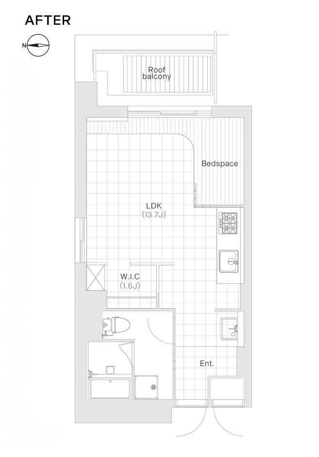
玄関から室内まで全面に磁器タイルを。土足使いもOKです

バルコニーにはウッドデッキ。 休みの日は1日この場所で過ごしてしまいそう

足場板の天板とステンレスの流し台を組み合わせラフな印象の仕上がりに。

リビング脇にはWICを設けて 見せたくない物もしっかり収納。

トイレとバスは一室型。 ゆったり広めで使い勝手の良い空間です

玄関入ってすぐの洗面台。白いモザイクタイルでスッキリとした印象に


単身住まいのオトナが満足できる”ひとり住まい”の住宅が少なすぎると思いませんか?ひとり暮らしだからこそ、何の妥協も譲り合いもせず、自分の思うような部屋づくりを思い切り楽しんでほしい!そんな想いでアートアンドクラフトでは”オトナのひとり住まい”を作り続けています。
OUTLINE
物件名 /粉川町のアパートメント
所在地 /大阪市
構 造 /SRC造
築年月 /1981年
竣工月 /2017年7月
施工面積/37.2㎡
STAFF
設計・監理 : 一森典子
コーディネーター :西川純司/土中萌
その他の事例