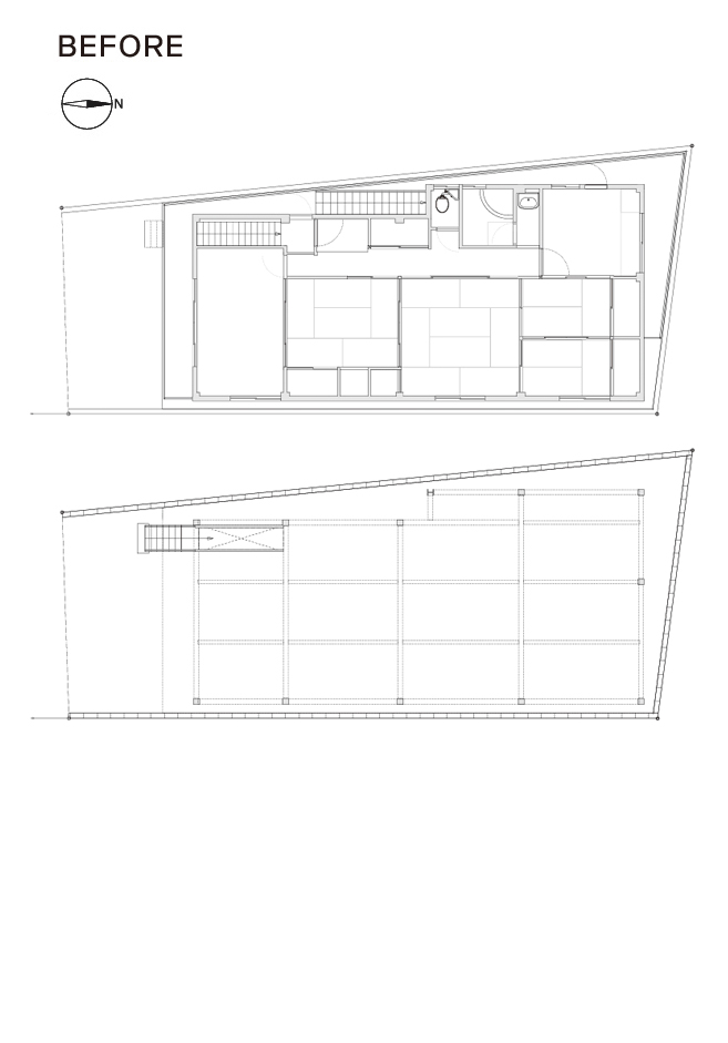
新築戸建てに9年暮したUさん夫婦。住み替え先に選んだのは、妻の実家である築43年・鉄骨造の戸建てでした。父が他界し兄がひとりで暮らす実家。リノベーションでは、経年劣化に加え台風の被害を激しく受けた建物をメンテナンスし、1階をガレージと兄の住居区画、2階をUさん夫婦の住居区画に。夢だったガレージハウスと以前のように親族が集まれる場所にしたいという想いを叶えられました。

周囲に鉄骨の構造柱とシャッターがあるだけのがらんどうの空間だった1階部分。そこに新たにRC基礎を設けて"ハコ"を建て、ガレージ兼兄の住居区画に。もちろん給排水管も新設。錆で穴が空いていた構造柱の補修や錆止め及び仕上げ塗装などのメンテナンスも施している。

夢だったガレージハウス。せっかくなら!と世田谷ベースのように、Uさんが名前をつけデザインしたロゴを製作した。

休みの日は1日中ガレージにこもり、レコードを流しながら、愛車のハーレーや学生時代からのAPEを整備しているそう。

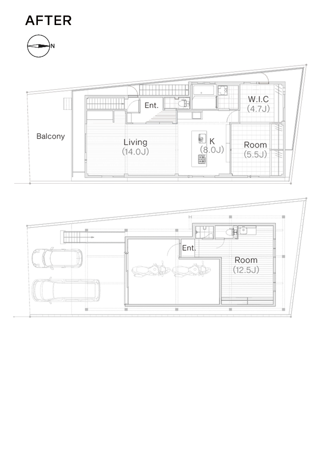
Uさん夫婦の住居区画である2階。"二間続きの和室"だった空間を、土間キッチンとリビングに改装。土間とフローリングとで床段差があるのも気に入っている。

デッキプレート現しに黒塗装の天井。床はモニカ材の無垢フローリング。約14帖のリビングは「親族が集まって座敷のように使いたい」というUさんの希望から家具を最小限に。年始には30人程が集まったそう。

ガラス窓の向こうは外階段を上りきった2階部分の玄関ホール。

既存綿壁の表面を削り(ケレン)、下地をクリア塗装で仕上げた壁。独特の表情が味わい深い。

祖父や叔父から聞いていた大切な床柱と欄間を移設し残すことで、家族と過ごした時間や思い出を継承した。

台所だったスペースをw.i.closet、6帖の和室を洋室にリノベーション。壁の白く塗装されたタイルは台所だった名残。


入居者の声

新築戸建てに9年住みましたが、一般的な個室重視の間取りも、ありきたりな仕様も好きになれませんでした。 父の他界、台風による建物被害が深刻だったこと等から、いよいよ実家をどうすべきか考えることに。元々、愛車であるハーレーの置き場所として実家1階のガレージを借りていたこともあり、ガレージハウスも叶えられるかもと思案していました。こんな建物は新築では建てれないし、以前から興味のあったリノベーションを選びました。価値観は人それぞれだけれど、私たちにとっては新築にかけた3,000万と実家リノベーションにかけた3,000万だと、後者の方が想い入れが強く意義があったと感じています。おかげで毎日が楽しくて幸せです。
OUTLINE
物件名:U邸
所在地:尼崎市
構 造:鉄骨造2階建
築年月:1976年
竣工月:2019年8月
施工面積:126.9㎡(延床)
-
写真:増田好郎
担当者より
一階のピロティ部分も新築当時に床面積を参入して確認申請が出されていたことから、床面積の範囲内にガレージ部分を作る計画で進めました。既存の鉄骨躯体の状態も考慮しつつ、元の建物に負担がかからないよう独立した”ハコ”としてガレージを設けました。元々たくさんの人たちが集まる場所だったと伺ったときは、この場所のルーツを教わったような気持でした。実現するまでにはハードルがたくさんありましたが、弊社にご相談に来てくださったとことを心から感謝しています。(川本)
STAFF
アーキテクト:川本美佳
コンサルタント:廣川未来
その他の事例