完全オーダーメイドの自由設計でマンションリノベーションをしたHさん宅が竣工しました。
この度、引っ越し前の住まいをお借りして見学会を開催します。
イベント概要
日 時|2026年1月17日(土)①13:00 受付/13:10 開始 ②14:00 受付/14:10 開始(各所要:約40分)
最寄駅|京阪本線「北浜駅」徒歩7分
大阪メトロ 堺筋線「北浜」駅 徒歩7分 / 谷町線「天満橋」駅 徒歩8分
受付は終了しました
Who is Hさん?
英国アンティーク家具が合う落ち着いた住まいづくりのためにマンション探しからご依頼いただいた30代ご夫婦のHさん。
まずは立地で大阪市街地か地下鉄沿線で郊外か迷われ、両方の物件を見てみて、
やっぱり職住近接の大阪市街地で!となってすぐにファミリー世帯も多く暮らす天満橋エリアで、
上層階・80㎡・南東角部屋と好条件の物件が現れ、即購入!となりました。
おふたりで常に優先順位を整理して進んでこられたので、
A&Cショウルームにご相談に来られて購入までわずか1ヶ月でした。
リノベーションでは、建材の手触りと好きにとことんこだわり、新建材の仕上げ材は極力使わず、
お使いになりたい素材・住設備機器、お探しになってこられた鋳物や真鍮の金物、洗面台用の家具・ドア、照明器具たちが融合するように設計施工で寄り添っていく計画となりました。
スイッチ・コンセントプレートまでこだわりつくした住まいの実物をご覧ください。


こんな方におすすめ
• アートアンドクラフトの施工の仕上がりを見てみたい
• 建材やパーツを参考にしたい
• 造作家具や扉を見てみたい
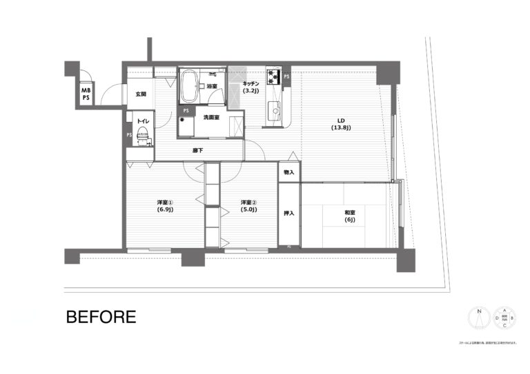
• リノベーションの間取りを参考にしたい
• 中古マンションの購入からリノベーションを検討している
まだ考え始めたばかりという方も大歓迎です。
イベントは定員制につき、ご興味のある方はお早めにお問い合わせください。
現地にて物件探しやリノベーションの流れ、資金計画についてなどのご相談も承っております。
気軽に参加&ご相談ください!
受付は終了しました
====================
お願いとご案内
・予約多数の場合は具体的にご検討の方を優先してご案内する場合がございます。
・小さなお子様連れの方は抱っこしていただく等のご配慮をお願いします。また、ご飲食やおもちゃで遊ばせる等もご遠慮ください。
・個人住宅のため写真撮影、同業や学生の方の勉強のための参加はお断りしています。




