あの時あの場所にあった建物がいつのまにか解体されて更地となり、ぽっかりと心に穴があいたような気持ちになることが増えました。花ブロックのあしらわれた鉄筋コンクリート造の建物が並ぶ沖縄らしい風景を残したい、そう想う沖縄県民が一人でも増えますように。
首里城のお膝元。この沖縄らしい魅力たっぷりの建物も例に漏れず、爆裂や雨漏りの症状が見られるなど劣化が進行中。その進行を止めるため、まずはまっさらのスケルトン状態へ。躯体補強をはじめ、コンクリート打設・防蟻処理・給排水管などのインフラ交換、といったベースづくりを行いました。その後、1階のみ内装を仕上げ、2階はあえてそのまま、住み手に合わせることとしました。これからどんな空間へと変化を遂げてくれるのか妄想が止まりません。

花ブロック×レトロタイル×ガラスブロックの愛らしい既存建物。外壁塗装・防水塗装を施した。

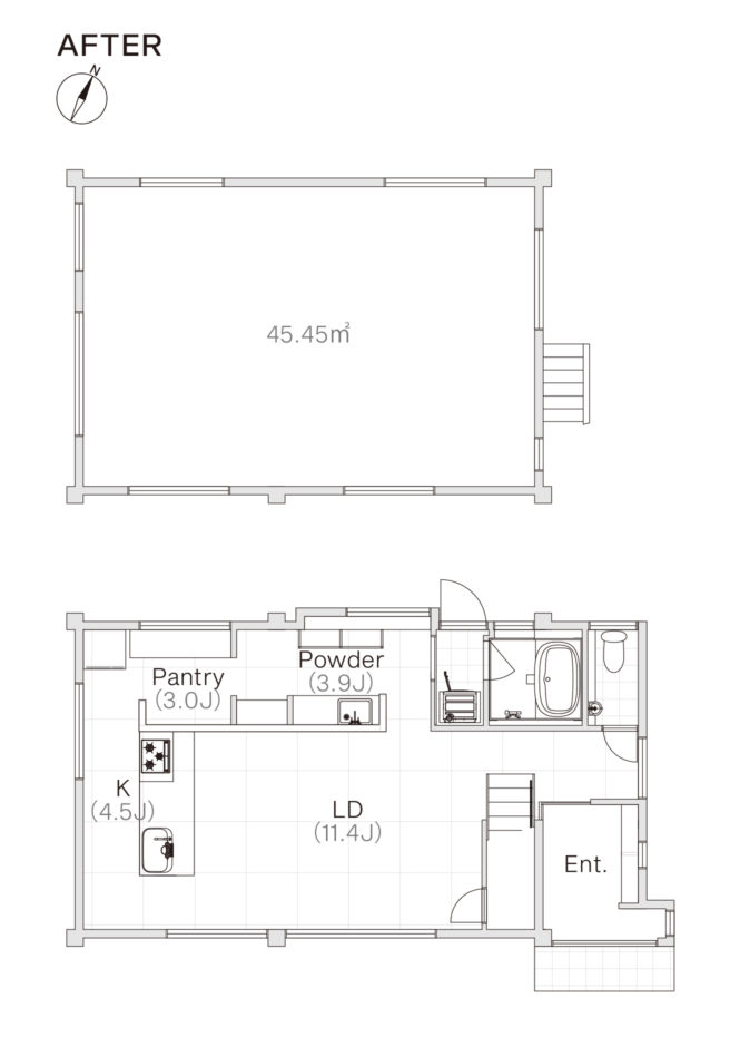
天井の高さ2.9mの空間には、ゆるく間仕切るポイントウォールを配置。背面に家事機能の全てを集約した。

キッチンはオールステンレスのシステムキッチンを採用。外観にあしらわれた既存タイルのデザインを室内にも取り入れた。

キッチンから繋がるパントリー。造作棚上には電化製品、下にはキャスター付きの収納家具を配置してアレンジすることも可能。

反対側からは浴室や洗濯機置き場との動線を重視したパウダースペース。

仮干しや室内干しにも活躍するアイアンバーは特注でオーダーしたもの。

広々したエントランスは土間仕上げ。

RC造2階建ての階段の架け替えはハードルが高いので、2階への階段は仕上げ材を更新した。手摺はアイアンバーとデザインを統一。

2階は躯体補強を施し、スケルトン状態へ。そのままギャラリーやアトリエとして使うもよし、つくり込んで住空間へするもよし。

2階からの眺望。

広い空をひとり占め!ルーフトップからの眺望は首里の高台だからこそ。

レトロガラスも中古物件の醍醐味。


OUTLINE
所在地 /那覇市
構 造 /RCB造
築年月 /1970年2月
竣工月 /2023年7月
施工面積/52.74㎡(1階)45.45㎡(2階)
―
写真:井田 佳明/島袋常貴(外観)
STAFF
アーキテクト:李麻生/塩谷昌洋
コンサルタント:森岡瑞穂/金城海名
その他の事例