セレクト型の「 TOLA -トラ- 」でマンションリノベーションをした、Sさん宅が竣工しました。この度、引っ越し前の住まいをお借りして見学会を開催します。
イベント概要
日 時|2025年11月22日(土)13:00 受付/13:10 開始 (所要:約40分)
最寄駅|JR「六甲道」駅 または 阪急「六甲」駅から バス+徒歩
イベントは終了しました
母とのふたり暮らし。
セレクト型でリーズナブルに、心地よい住まいを手に入れる。
単身で暮らしていた30代のSさん。お母様との同居を前提に、物件探しをスタートされました。購入された物件は、築50年超ながらも管理状態の良いマンション。神戸の街と海を見下ろす景色は、六甲の高台に位置する特権です!!
室内は、アートアンドクラフトが提供する、
セレクト型リノベーション「 TOLA – トラ – 」で、リーズナブルに、心地よく過ごせる住まいを手に入れました。
映像を見たり裁縫をしたりと、家でゆっくりと過ごす時間を大切にされたいSさん。リビング・ダイニングには、足触りの良い<ナラ材の無垢フローリング>を採用しています。窓を開けると南から吹き抜ける風が気持ち良く、せっかくなら北側の個室(ROOM1)にも風が流れるようにと<室内窓>を新設しました。
他にも、
・玄関から明るく開放的に迎えてくれる土間storage
・室内窓や腰壁で緩やかにつながる空間
・ステンレス天板の造作対面キッチン
・白いタイル張りの清潔感ある洗面スペース
・カーペット敷の寝室
などなど、住まいづくりのヒントになる建材パーツやアイディアが盛りだくさんです。

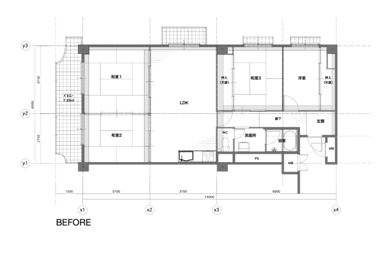
約85平米の1室。南側には神戸の海と街が目下に広がる。

甥っ子をはじめ、親族が遊びに来ても困らない広々LDK(約20帖)に、大人ふたりの各々の個室と収納スペース。玄関横にあった洋室は、玄関土間に取り込みstorageとした。
▶︎こんな方におすすめ
• アートアンドクラフトの施工の仕上がりを見てみたい
• セレクト型リノベーション「TOLA」について知りたい、実例を見てみたい
• 建材やパーツを参考にしたい
• リノベーションの間取りを参考にしたい
• 中古マンションの購入からリノベーションを検討している
まだ考え始めたばかりという方も大歓迎です。
イベントは定員制につき、ご興味のある方はお早めにお問い合わせください。
現地にて物件探しやリノベーションの流れ、資金計画についてなどのご相談も承っております。
気軽に参加&ご相談ください!
イベントは終了しました
====================
▶︎お願いとご案内
・予約多数の場合は具体的にご検討の方を優先してご案内する場合がございます。
・室内では、小さなお子様連れの方は抱っこしていただく等のご配慮をお願いします。また、ご飲食やおもちゃで遊ばせる等もご遠慮ください。
・個人住宅のため写真撮影、同業や学生の方の勉強のための参加はお断りしています。
▶︎セレクト型リノベーション『 TOLA – トラ- 』 について
https://www.a-crafts.co.jp/service/renovation/select/




